Auditorium del parco
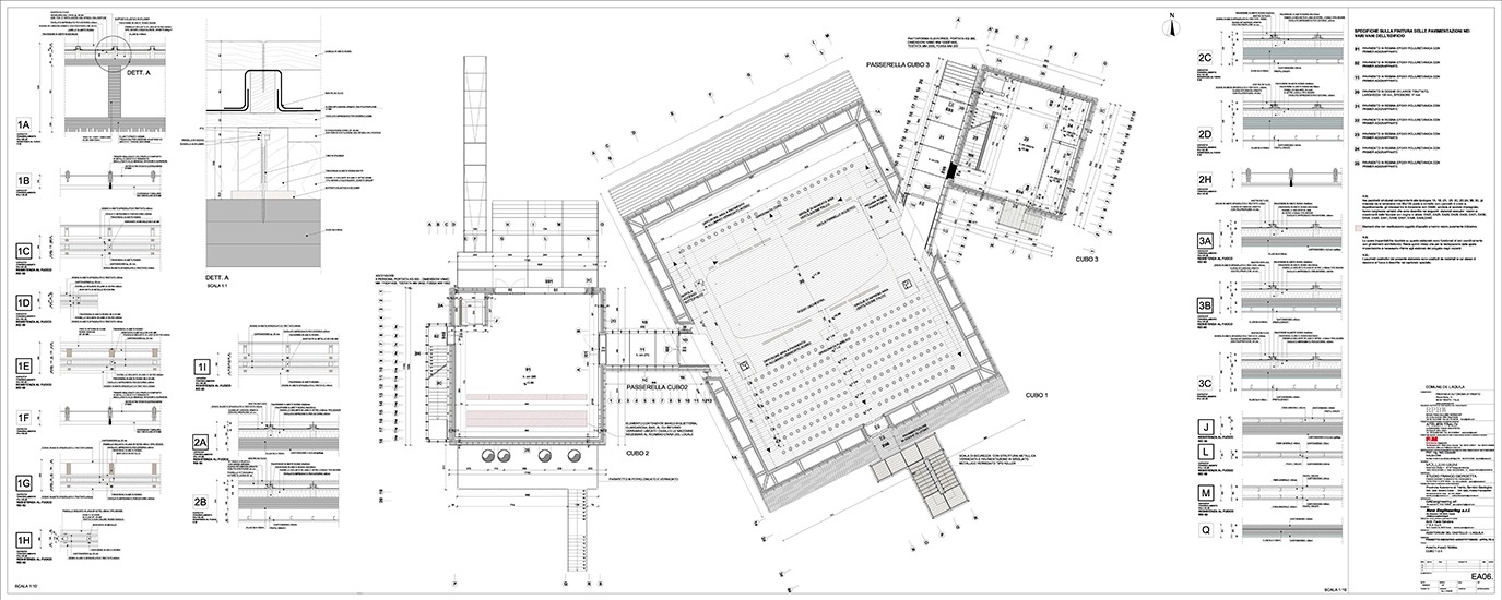
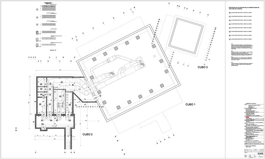
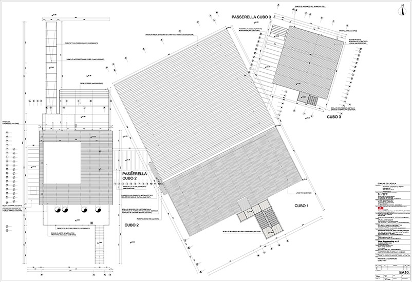
Il progetto nasce da un'idea di Claudio Abbado per dare a L'Aquila uno spazio dove eseguire e ascolare musica in attesa del ripristino della sala del Forte Spagnolo. L'edificio è interamente in legno ed è temporaneo. L'Auditorium è formato da tre volumi di legno a forma di cubo di dimensioni differenti, accostati e collegati tra loro. Il volume centrale, il più grande, contiene una sala da 238 posti e un palco per un'orchestra di 40 musicisti.
Dati progetto
| Progettazione | 2010-2011 |
|---|---|
| Costruzione | 2012 |
| Area del sito | 2500 m2 |
| Superficie costruita | 471 m2 |
| Verde riqualificato | 4491 m2 (93 nuovi alberi) |
| Altezza | 18,50 m max |
| Rivestimento esterno | 6000 doghe di abete larghe circa 25 cm e spesse 4 cm |
| Auditorium | 238 posti |
Credits
| Cliente | Provincia Autonoma di Trento |
|---|---|
| Architetto | Renzo Piano Building Workshop, architects in collaborazione con Atelier Traldi, Milano |
| Consulenti | Favero & Milan (structure and services); Müller BBM (acoustics); Franco Giorgetta (landscape); GAE Engineering (fire prevention); New Engineering (security); I.T.E.A. (site supervision) |
Disegni























Immagini

























Modelli

